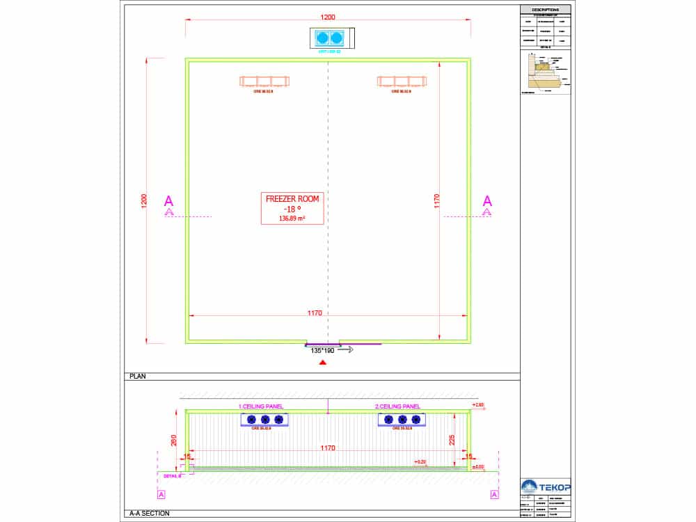
374 m³ capacity Freezer Room (-18 °C) 374 m³ capacity Freezer Room (-18 °C) 374 m³ capacity Freezer Room (-18 °C) Canada Freezer Room General Freezer Room 144 m² ORCA Split Refrigeration Unit Sliding Freezer Room Door 274 m² 12 m 12 m 2,6 m -18 °C 374 m³ Future Projects
TEKOP PROJECT



PROJECT LOCATION
ROOM TYPES
PROJECT PURPOSE
PROJECT AREA
REFRIGERATION SYSTEMS
DOORS
PANELS
WIDTH
LENGTH
HEIGHT
ROOM TEMPERATURE
CAPACITY
