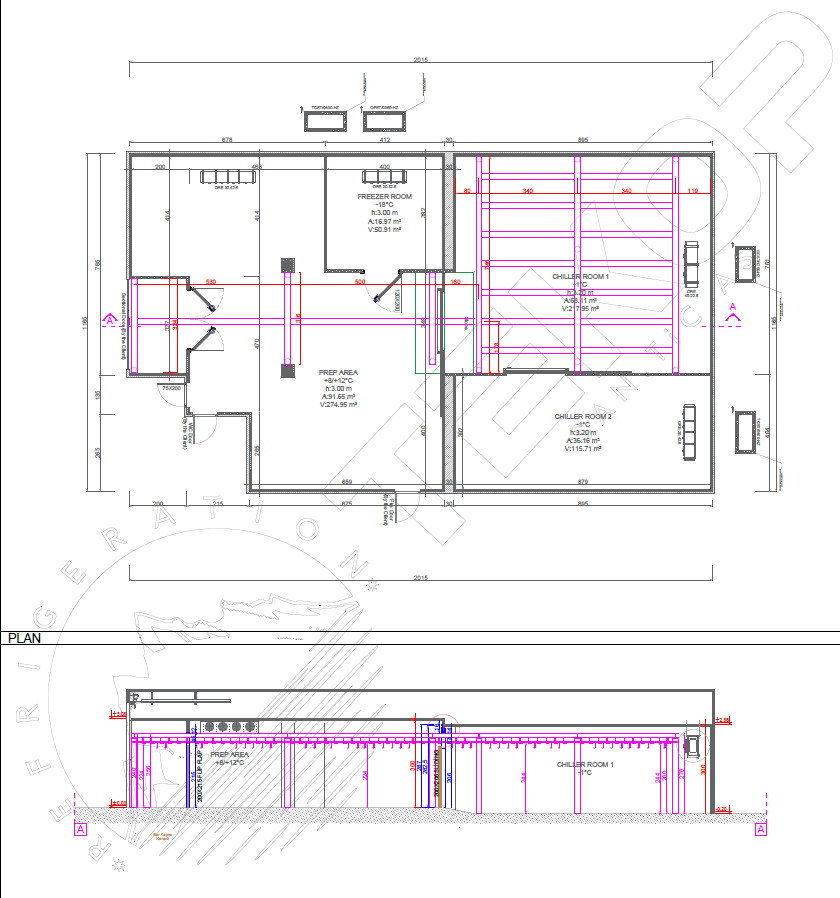
A fully integrated cold storage facility equipped with a monorail system for efficient product handling and precise temperature control. Final installation. Precision and performance in every detail. Realistic visualization of design and layout. Technical plan showing structure and system design. This turnkey cold storage project, completed by Tekop Refrigeration in the United Kingdom, features an integrated monorail system designed to optimize product handling and operational flow. The facility includes freezer, chiller, and preparation rooms, each engineered to maintain precise temperature control for maximum product quality and safety. From project design to on-site installation, every stage was delivered with Tekop’s signature engineering excellence. Country: United Kingdom Freezer Room: -18°C / A: 25.97 m² / V: 90.91 m³ Chiller Room 1: +2°C / A: 36.12 m² / V: 151.71 m³ Chiller Room 2: +2°C / A: 36.28 m² / V: 152.17 m³ Prep Area: +10°C / A: 63.15 m² / V: 234.56 m³ engineering excellence for your refrigeration needs. Tekop Projects designs and builds industrial cold rooms, freezer systems, and customized refrigeration solutions for food, retail, and logistics industries. Meat Storage Cold Room Project in the UK
completed
project phase 3d
project phase 2d
Project Details
Total Area: 201.5 m²
Project Type: Turnkey Cold Storage Facility
Rooms:









about us
With advanced engineering, energy-efficient systems, and decades of expertise, we help businesses preserve quality, reduce costs, and improve performance. send a message
request a call back
