Skip links

Oman Freezer Room Construction Project

Future Projects

TEKOP PROJECT

18 April 2019

Start

Our customer sent requests.

22 April 2019

Preparing Project

Our project team prepared the project.

23 April 2019

Offer

We sent the offer to our customer.

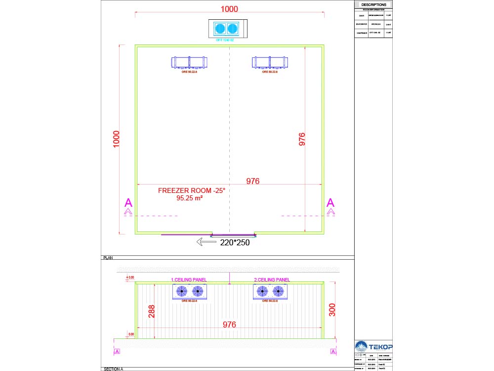
PROJECT LOCATION

Oman

ROOM TYPES

Freezer Room

PROJECT PURPOSE

General Freezer Room

PROJECT AREA

100 m²

REFRIGERATION SYSTEMS

ORCA Split Refrigeration Unit

DOORS

Sliding Freezer Room Door

PANELS

220 m²

ROOM NAME

FREEZER ROOM

WIDTH

10 m

LENGTH

10 m

HEIGHT

3 m

ROOM TEMPERATURE

-18 °C

CAPACITY

300 m³

This website uses cookies to improve your web experience.
Home
Account
Cart
Search
Explore
Drag