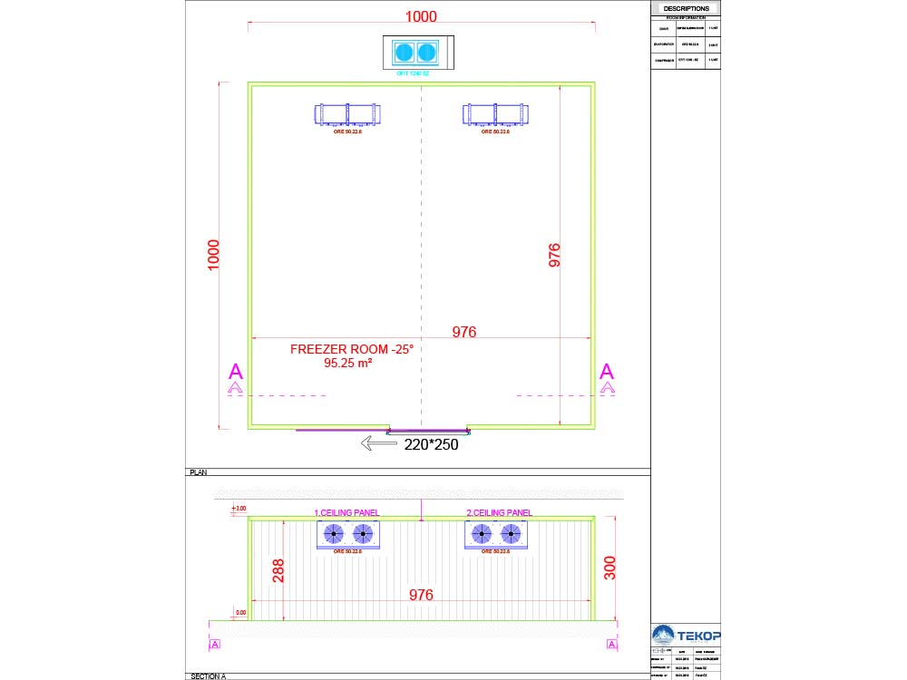
300 m³ capacity Freezer Room (-18 °C) 300 m³ capacity Freezer Room (-18 °C) 300 m³ capacity Freezer Room (-18 °C) Freezer Room General Freezer Room 100 m² ORCA Split Refrigeration Unit Sliding Freezer Room Door 220 m² 10 m 3 m -18 °C 300 m³


ROOM TYPES
PROJECT PURPOSE
PROJECT AREA
REFRIGERATION SYSTEMS
COLD ROOM DOORS :
COLD ROOM PANELS :
AREA
HEIGHT
ROOM TEMPERATURE
CAPACITY
